大林組技術研究所本館 テクノステーション 基本図面 Close
建築データ
     
所 在 地   東京都清瀬市下清戸4-640
主 用 途   研究所
構   造   本館=鉄骨造
(免震構造:スーパーアクティブ制震構造)
守衛所=RC造、一部S造
敷地面積   69,401.30m2
建築面積   本館=3,370.51m2、守衛所=101.92m2
延床面積   本館=5,535.38m2
 
建   主   大林組
設計・監理   大林組
施   工   大林組
工   期   2009年11月〜2010年9月
 
左/各棟にて実験と研究が完結し、各部門が分断
右/パッセージにより実験と研究機能のつながりを保持しつつ各部門の執務スペースを本館に集約し異分野交流を誘発
 
   
クリックで拡大表示
本館 テクノステーション 2階平面図
※上記画像クリックで拡大表示されます。
   
クリックで拡大表示
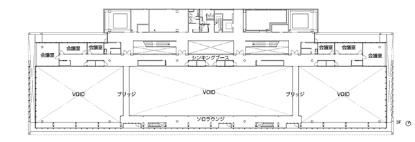
本館 テクノステーション 3階平面図
※上記画像クリックで拡大表示されます。
   
本館 テクノステーション 断面図
※上記画像クリックで拡大表示されます。
   
配置図
※上記画像クリックで拡大表示されます。